100-05 Roosevelt Avenue, Corona, NY. 11368

PROJECT INFORMATION

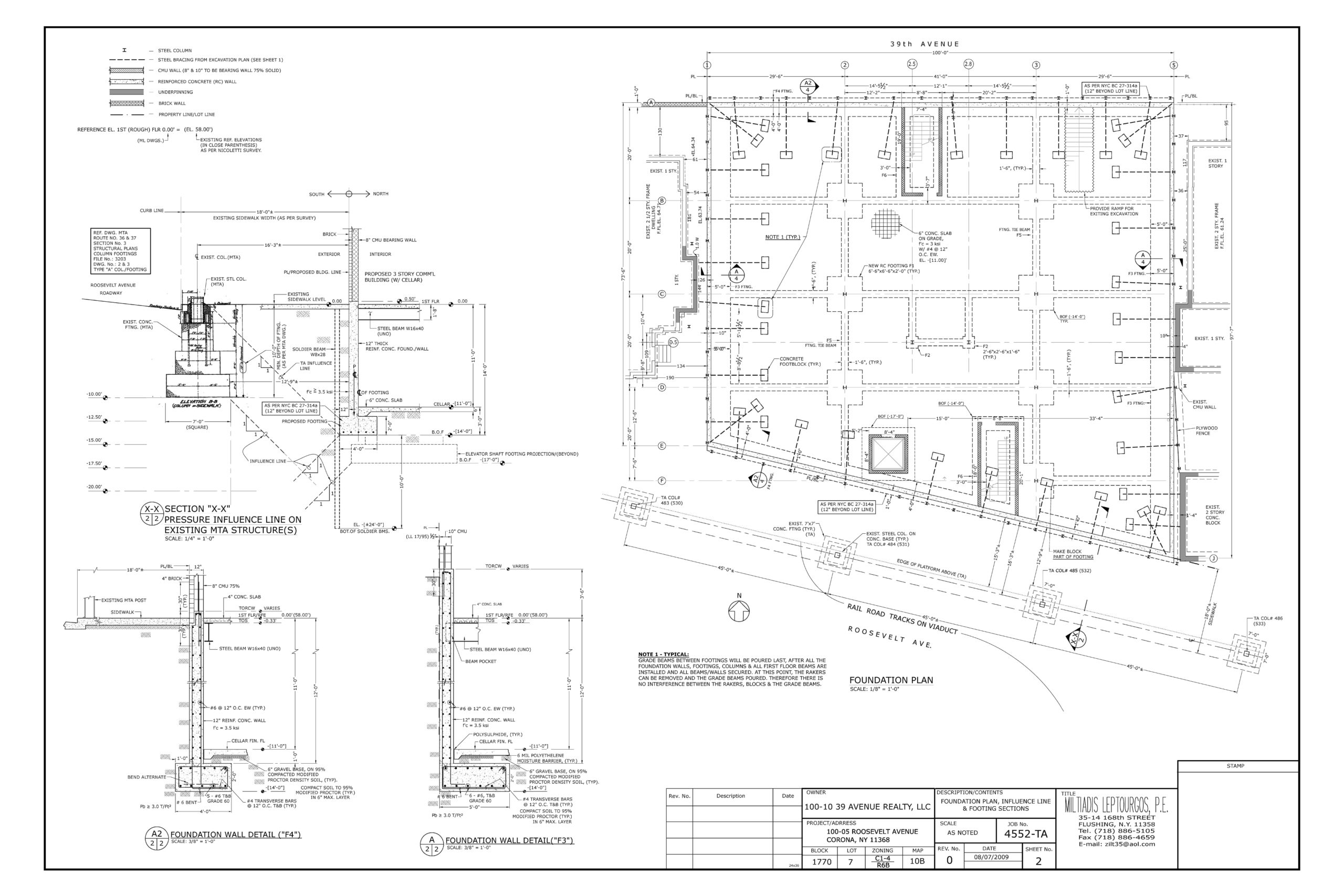
100-05 Roosevelt Avenue was an extensive commercial project that involved taking residential housing, demo-ing the residential housing, converting it legally through permitting to commercial zoning, increasing the usable air-space of the building and then erecting a 2-story mixed-use building on a 9,000 sqft lot.

Miltiadis Leptourgos, P.E. oversaw this entire project from land acquisition, to purchase price negotiation, to construction plans, permitting and more.

Miltiadis Leptourgos, P.E. was able to provide design for all structural and foundation of this 2-story building, as well as the complete sprinkler, plumbing, stand-pipe and mechanical systems.

The building now houses a pharmacy, gym, medical offices and more.

Project Location

100-05 Roosevelt Ave Corona, NY 11368

Project Scope

Design for Site Connection - Roof Detention for a Commercial 2-story new building with new Sprinkler and Standpipe Systems, new Plumbing System, new Mechanical Systems, Structural Design and Foundation

Project Size

50000

Our Solution for 100-05 Roosevelt Avenue, Corona, NY. 11368

When the real estate group wanted to convert a residential lot into a commercial space, we provided comprehensive real estate development and oversight of the entire process, taking them from concept to reality, while providing guidance over the course of a 2-3 year project timeline. We are fully able to service civil and structural engineering designs, plus provide project management services in any capacity and we specialize in working with building owners across the United States.
{"autoplay":"true","autoplay_speed":"3000","speed":"300","arrows":"true","dots":"true","rtl":"false"}